Héritage 2.0

Année
25/04/2024

Travail
Individuel

Durée
4 mois

Situé à proximité du Parc Olympique sur l’avenue Desjardins, Heritage 2.0 est un duplex des années 1929 dont les caractéristiques typiques des plex y sont remarquées. Dans le projet, celles-ci sont préservées et intégrées dans le nouvel espace avec un aspect plus moderne. Le but premier et d’unir habilement le passé et le présent de façon novatrice, c'est-à-dire remettre au goût du jour les particularités des plex montréalais.

Ce logement a été réfléchi pour une famille de 4 personnes afin d’allier le travail et le chez-soi. Elle est composée d’un père ingénieur, d’une mère cheffe de cuisine donnant des cours à son domicile et de deux enfants dont une fille étudiante à l’université et un fils scolarisé au secondaire. Leur attachement à la culture montréalaise se traduit par la volonté de préserver le charme existant du bâtiment.

Site d’implantation

Volumes

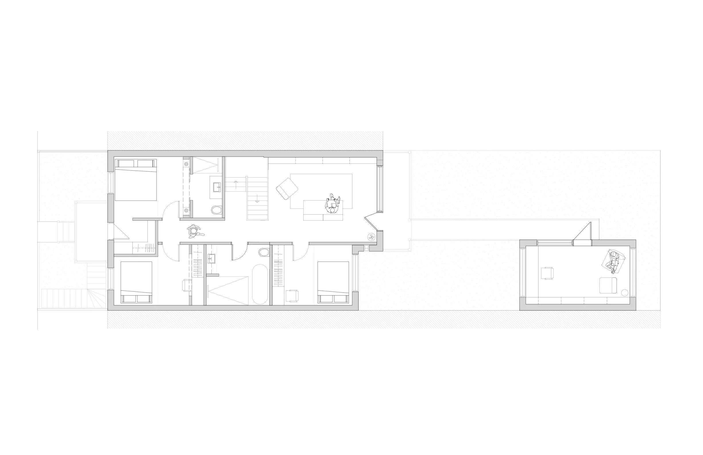
Ce duplex comprend 3 niveaux et une annexe dans la cour arrière. La surface totale étant assez importante, elle offre un grand nombre de possibilités d'aménagement. Pour ce projet nous allons nous concentrer essentiellement sur le rez-de-chaussée, l'étage ainsi que l’annexe au complet. 

Façade avant

Façade arrière

À travers cet aménagement, l’idée est de mettre en valeur les détails originaux déjà présents comme les escaliers extérieurs,  les colonnes, les cadres de portes en bois ou encore le couloir. Toutes ces caractéristiques qui font l'âme de ce plex ont été intégrées au projet tout en répondant aux besoins de la famille. De plus, le couloir est gardé en tant qu’élément central autour duquel les espaces de vie vont s'articuler. Au rez-de-chaussée , on retrouve son empreinte grâce au travail du meuble sur mesure de l’entrée, à l'aménagement de la salle à manger et de la cuisine, et du sol qui tous réinterprètent les murs originaux. Ces aménagements délimitent l’effet du couloir dans la longueur qui est présent sans être réellement défini. 

À l'étage, certains murs ont été préservés tout en créant un aménagement adéquat pour les besoins de la famille. Le choix des couleurs épurées est privilégié pour ne pas dénaturer l’espace. De plus, l’escalier a été pensé de façon à être discret, il se fond dans le volume de la pièce, en épousant la couleur du mur afin qu’il ne prenne pas le dessus sur l’existant.

Plan du rez-de-chaussée

Entrée

En ce qui concerne les besoins de la famille, le père dispose d’un espace de travail réfléchi et agencé pour répondre à tous ses besoins. La mère quant à elle aura à disposition une cuisine secondaire dans l’annexe afin d'y donner ses cours en toute intimité. L’isolement de cette cuisine permet la venue des clients sans impacter la vie familiale puisqu'ils peuvent y accéder par la ruelle arrière. Une terrasse permet de délimiter l’espace entre la partie familiale et la partie publique.

Bureau

Salle à manger

Cuisine principale

Vue générale

Salon

Cuisine secondaire (annexe)

Extérieur

Plan de l’étage

Chambre parentale

Salle familiale

Salle de détente et bureau

Cette transformation est un hommage à son passé. En préservant les détails de son héritage, cette unifamiliale incarne l'essence du design d'intérieur moderne tout en gardant les aspects originaux. Dans cette maison, le passé et le présent se fondent dans la créativité.